Op zoek naar uw nieuwe droomwoning, maar uw oude woning nog niet verkocht? Vraag hier een gratis waardebepaling die eerstdaags kan worden uitgevoerd door één van onze experten.
Vastgoed03 | Kantoor | Kantoorgeb... | 7143544
Gratis schatting van uw woning?
Neem contact op met ons voor meer info of plan een bezoek in.

Kantoorgebouw met 2 garages en gunstig EPC nabij Antwerpen centrum en Antwerpse haven!
Bent u op zoek naar +250m² kantoorruimte vlakbij verscheidene afzetmarkten?
Dan is dit kantoorgebouw precies wat u zoekt!
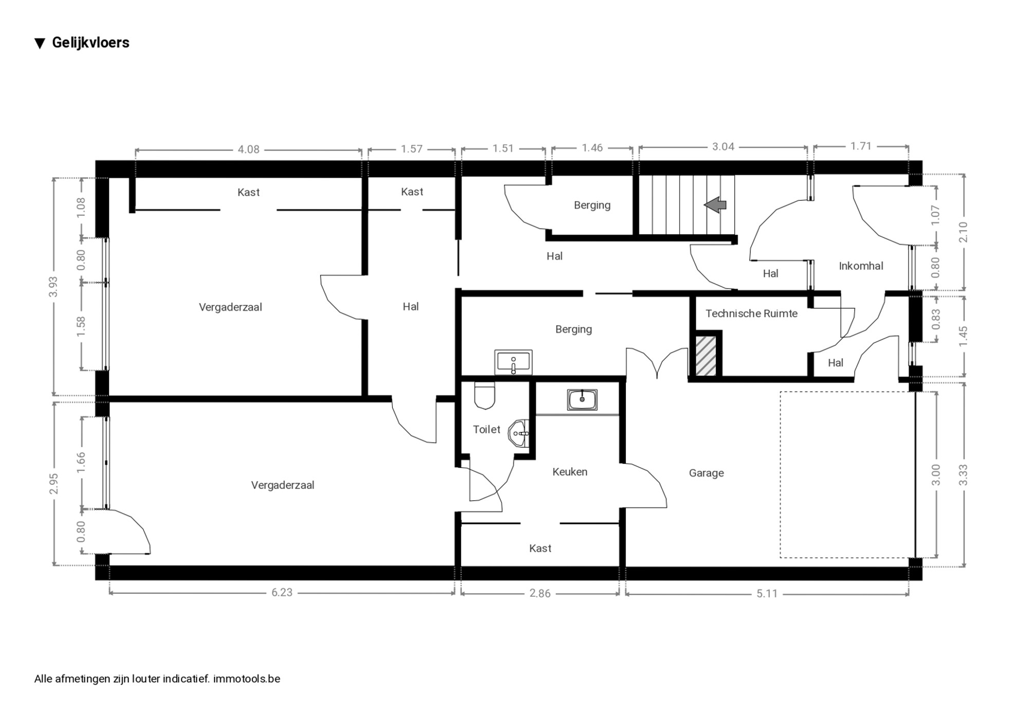
Indeling – gelijkvloers:
-
Inkomhal met toegang tot de technische ruimte
-
Inpandige garage
-
Kitchenette met lavabo en koelkast, met toegang tot een toilet met handenwasser
- Vergaderzaal met toegang tot de achterliggende garage
-
Tweede vergaderzaal met ingemaakte kasten
-
Twee bergingen
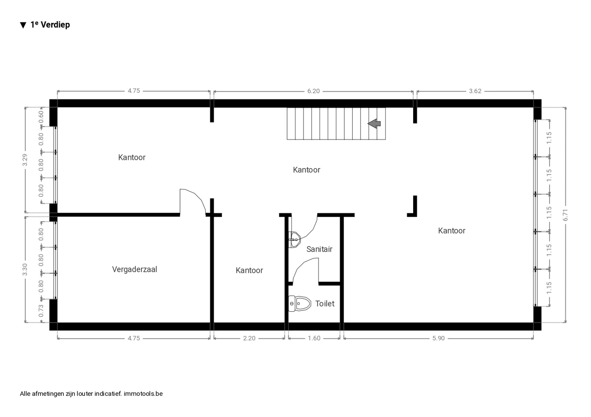
Indeling – eerste verdieping:
-
Drie kantoorruimtes
-
Vergaderzaal
-
Apart toilet met handenwasser
Indeling – tweede verdieping:
-
Twee kantoorruimtes
-
Archief
-
Kitchenette met lavabo en mogelijkheid tot ijskast
-
Toilet met handenwasser
Troeven van dit kantoorgebouw:
-
Airconditioning op de eerste en tweede verdieping
- Twee garages
-
Gunstig EPC, zonnepanelen
- Parkeerplek voor clienteel voor de deur
-
Nabij het epicentrum van de Vlaamse economie, de Antwerpse haven
- Openbaar vervoer voor de deur
Dit kantoorgebouw is eveneens te huur voor € 1.750 per maand.
Meer informatie of een bezichtiging?
Neem contact met ons op via 03 568 03 03 of info@vastgoed03.be voor meer details of om een afspraak te maken.
7143544
Het adres
-
Groenendaallaan 136, 2170 Merksem
Financieel
- Prijs € 449.000
- Vrij op Vanaf akte
Comfort
- Dubbel glas Ja
- Aansluiting elektriciteit Ja
- Aansluiting aardgas Ja
- Aansluiting waterleiding Ja
Bebouwing
- Bouwjaar 1968
- Oppervlakte 258 m²
- Aantal gevels 2
- Epc code 20250603-0003616104-KNR-1
- Keuring elektriciteit verkregen Nee
Stedenbouwkundige info
- Stedenbouwkundige vergunning verkregen Niet meegedeeld
- Meest recente bestemming Niet meegedeeld
- Dagvaardingen uitgebracht Niet meegedeeld
- Voorkooprecht op dit goed Niet meegedeeld
- Verkavelingsvergunning verkregen Niet meegedeeld
- Overstromingstype
Effectief overstromingsgevoelig gebied
-
G-score
D
-
P-score
D
Documenten
Interesse? Neem contact met ons op.
Laat hier je gegevens na of neem contact op met onze makelaar.